Переуступка однокомнатной квартиры в ЖК Central Hills, Orange City

Переуступка однокомнатной квартиры в ЖК Central Hills, Orange City

1 035 000 Грн.
Город: Киев
Жилой комплекс: Central Hills
Метро: Выдубичи
Новостройка
Год строительства: 2023
Этажность: 26
Этаж: 16
Общая площадь: 37М²
Площадь кухни: 14М²
Количество комнат: 1
Санузлов: 1
Ремонт: После строителей
Тип сделки: Переуступка
Комиссия: Без комиссии

Переуступка однокомнатной квартиры в ЖК Central Hills

Переуступлю без комиссий имущественные права на полноценную однокомнатную квартиру с отдельной спальней в доме №3 ЖК Central Hills (бывший Orange City), Лысогорский спуск 26. Каркас этого дома уже практически закончен, делается остекление. Новый застройщик LEV Development будет менять фасады этого дома в концепции нового проекта, чтобы было гармонично с домами 2 и 4, где будут вентилируемые фасады и темные благородные цвета. Сдача планируется летом 2023.

Продажа квартиры в районе Демеевка проспект Науки метро Выдубичи

Окна на восток и Днепр — потрясающая панорама и много света. После окончания комплекса окна будут выходить на тихий внутренний променад с парком и детским садиком.

Квартира будет сдаваться с минимальной отделкой после строителей. Будут входная бронированная дверь хорошего качества стеклопакеты, разводка и радиаторы отопления (остальные коммуникации заводят в квартиру в одной точке). Будут внутренние перегородки, стяжка пола, гидроизоляция в ванной. Видеонаблюдение. Консьерж. Гостевой паркинг. Монолитно каркасная технология строительства со стенами из газоблока и утеплением минеральной ватой.

Продам однокомнатную квартиру в ЖК Central Hills

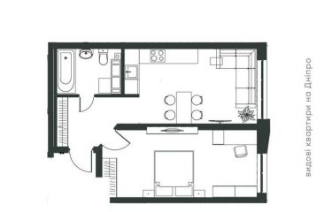
Возможна перепланировка с переносом кухни в зону санузла и созданием большой гостиной на месте спальни и ванной со спальней на месте текущей кухни с выносом балконной стены, которая не несущая.

Проект расположен рядом с парком, в Голосеевском районе. До Печерска 15 минут на автомобиле. Ближайшая станция метро Демеевская, в 10 минутах на маршрутке. Планируется возможность прохода и проезда до станции метро Выдубичи.

Продажа однокомнатной квартиры в ЖК Central Hills

ЖК Central Hills — это 8 элитных домов, школа, ТРЦ, подземный паркинг, фитнес центр, детские площадки А класса. Застройщик LEV Development анонсировал масштабную реновацию проекта Оранж Сити и повышение класса ЖК с комфорта до бизнес класса. Цель проекта — построить новый элитный жилой микрорайон бизнес класса сравнимый по качеству, классу жилья, архитектуре и инфраструктуре с Новопечерскими Липками. Контактные фонтаны, зоны барбекю, дорогие лобби. Закрытая территория с круглосуточной охраной и видеонаблюдением. Поля для тенниса, SPA, кинотеатр под открытым небом. По планам застройщика через 2 года м2 в ЖК будет стоить $2000.

Share:

5981
Опубликовано: 10.02.2024
Просмотров: 777
Участник 4 года
Риелтор
380 * * * * * * * * *
Сообщение

Телефон:

Email:

© 2024 Spot.ua - Бесплатная доска объявлений недвижимости